Главная Настройка Mobile Контакты NSFW Каталог Пожертвования Купить пасскод Pics Adult Pics API Архив Реквест доски Каталог стикеров Реклама
Доски


[Ответить в тред] Ответить в тред

Check this out!

[Назад][Обновить тред][Вниз][Каталог] [ Автообновление ] 193 | 32 | 94
Назад Вниз Каталог Обновить

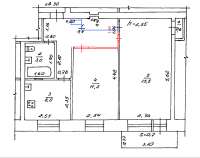
Есть одна сычевальня Аноним 08/12/15 Втр 20:42:00  68757  
(411Кб, 640x480)
(413Кб, 640x480)
(166Кб, 1133x772)
(38Кб, 603x426)
43 метра, первый этаж пятиэтажной панели в ближайшем пригороде дс2. Дом 60 годов, ремонта в хате не было с момента постройки. Я жил в ней набегами, каждый раз героически выкидывая бесконечное количество хлама и рухляди (благо помойка в 300 метрах за углом). Теперь наконец-то появились какие-то деньги и даже внезапное осознание, что жить в этой квартире в 15 минутах от города имеючи самоходную бричку - заметно винрарнее, чем снимать жилье в городе, как я делал обычно. В итоге пилю сычевальню мечты, лол.

Накидал примерный желаемый результат в планер5д. Прилагаю оригинальную бесконечно уебищную планировку с двумя ебанутыми кладовками, как же они меня бесили. Еще бесила ебаная узкая говноприхожая, в которой если есть шкаф или вешалка, буквально трешься плечами о них или об стену. Поэтому теперь прихожая планируется охуевшая, с огромным шкафом, куда кроме одежды поместится все мое ньюскульное и мотокросовое барахло. Спальню хочу звукоизолировать. От соседей по кв (впрочем, они не шумят, но в панели слышно телевизор через стенку даже на норм громкости - бесит) и от уебка в частном доме прямо за окном с собакой и сука настоящим живым петухом, который голосит каждые 4 часа даже ночью, лол.

На сегодняшний день поставлены норм окна, выпилены кладовка в спальне и стена между кухней и комнатой. Готовлюсь усиливать проем швеллером, т.к. перепланировку делаю законно, со всеми ебаными формальностями.

Итт буду пилить прогресс. Ну и жду от анона советов мудрых, где я проебался, где что-то иначе стоит сделать. Алсо, хочу норм дизайн в плане цветовой гаммы и материалов. Нраица лофт, я пытался чото изобразить в планере - ожидаемо соснул. Ща на рендере цвета подобраны почти стандартные для планера, буду рад предложениям.
Аноним 08/12/15 Втр 22:42:05  68776
(75Кб, 1024x583)
(67Кб, 1024x583)
Немного фото нынешнего состояния сычевальни. Для начала - свежевыпиленная стена между кухней и комнатой
Аноним 08/12/15 Втр 22:54:52  68779
(64Кб, 576x1024)
(93Кб, 1024x576)
(78Кб, 1024x576)
1 - вид из прихожей, 2 - если пройти чуть дальше, 3 - есди зайти в комнату и развернуться. Сука что за дебил придумал там сделать кладовку, это же ебаный пиздец.
Аноним 08/12/15 Втр 23:02:35  68780
Еще у меня есть идея выпилить примыкающий к стене с окнами кусок перегородки между комнатой и спальней. Тогда исчезнет отдельная спальня, зато будет такой-то йоба лофт без дишних стенок, но с уютным закктком для кровати. Но я не знаю, кпк в этом варианте норм расставить мебель. Без большого стола для пеки мне нельзя - я у мамки технарь-инторнет предприниматель.
Аноним 08/12/15 Втр 23:24:52  68786
Кек, анон, я в такой же точно квартире устроил погром буквально вот месяц назад. Снес все стены, снял все полы. Насчет стен пожалел, потому как после очистки всех поверхностей стало ясно, в каком же хуевом состоянии находятся перекрытия, делать там хуеву тучу дырок под каркас для ГКЛ стремновато.
Аноним 08/12/15 Втр 23:28:11  68788
>>68776
Охуенный вид из окна.
Аноним 08/12/15 Втр 23:35:58  68789
(75Кб, 1024x583)
>>68786
Нахуя сносить стены, чтобы потоп их делать из гипрока? Я сношу, чтобы их не стало. Полы трогать не хочу. Ща вроде не скрипят, отец строитель домов 80 лвл рекомендует шлифануть паркет и класть пол сверху. Такая же кв - может соседи, лол?


>>68788
Да уж. Может летом кустов каких посажу.
Аноним 08/12/15 Втр 23:47:11  68791
>>68789
Ну от стенами между комнатами после убирания кладовки и создания нового прохода (хочу банальную раздельную планировку) ничего не оставалось, потому как гигантская дверь-раскладушка занимает большую часть комнаты. Стены в ванной/туалете уж больно прогнившие были, тоже на снос. Оставалась эта здоровая между кухней и комнатой, вот ее можно было б оставить. Ну хуй с ним, за месяц на голову не упало ничего, значит, наверное, все будет нормально.
Насчет полов - у меня сильно скрипели и пахли (кошки жили когда-то, плюс заливали соседи, подгнившее все), потому-то и снял. Грязная работа, пыли мелкой дохуя, тонны песка, пиздец, если есть возможность - не связывайся, делай поверх. Ну или отциклевать просто можно старый.
А мы быть не можем - у меня крупноблочный дом (не панель), в московском районе а не за городом. Но похож, вон, плиты перекрытия такие же, шатровые, тонкие, они далеко не во всех хрущах использовались.
Аноним 09/12/15 Срд 02:07:22  68804
(411Кб, 640x480)
(500Кб, 640x480)
>>68780
Запилил сычевальню без стенки и с сосной. Вроде не хуже, а в плане простора даже лучше. Подумаю пока - как раз время есть - при выносе стенки дернул спину, лежу уже третий день отдыхаю. В кокочалочке рабочая становая 120-140, а надорвался, когда вдвоем несли кг может 40, кек.
Аноним 09/12/15 Срд 15:26:40  68866
>>68804
> кокочалочке рабочая становая 120-140, а надорвался, когда вдвоем несли кг может 40, кек.
Ехидный комментарий про кочек, практический тренинг и техничность.
Аноним 09/12/15 Срд 15:36:00  68867
>>68866
Сам ехидно кекаю и тролю кочек ирл и в физаче, будучи стройным спортивным рельефным высокобогом. Летом мотокросю, зимой ньюскулю, круглый год акробатика и растяжка. Но и при таких раскладах от внепного пиздеца со спиной оказался не застрахован.
Аноним 09/12/15 Срд 21:48:22  68874
А какой в этом случае смысл в раздельном сан-узле? Сделай совмещенный
Лучше уж один +- просторный совмещенный, чем 2 тесных раздельных
Аноним 09/12/15 Срд 21:51:17  68876
>>68874
Да и сам талч считай прямо у входа и вход тесный очень. Мне кажется это самое слабое место твоей планировки
Аноним 09/12/15 Срд 21:54:50  68877
Оп, а газовщики пиздюлей не дадут? Я знаю что в таких квартирах нельзя объединять помещение с газом (кухню) с жилыми помещениями, но не знаю, могут ли газовщики с этим что-то поделать.
Аноним 09/12/15 Срд 22:45:06  68883
>>68877
Они могут неодобрительно к этому относиться.
Аноним 09/12/15 Срд 22:45:13  68884
>>68877
2 пути
1. бабка-проверяльщика думает, что не имеет коммерческого интереса - потому ей похуй, она забьет. Либо она просто не знает, что так нельзя. Либо штраф и забьют до слеующего раза. Маловероятно, но возможно, пидорашка же.
2. бабка умная, знает, что в случае чего она первой пойдет по этапу, оштрафуют, предпишут вернуть как было, дадут срок на исправление, потом банально вырубят газ, чтобы не стать крайними. Если главгаз параноик - вырубят сразу.
А уж соседи тебя выебут.
Аноним 09/12/15 Срд 23:31:28  68887
>>68874
Смысла никакого. Единственная причина его не объединять - пока лень копошиться. Пока займусь комнатами/кухней, чтобы въехать в квартиру пораньше. Туалет/ванну я собрался в последнюю очередь делать, т.к. ныне они норм функционируют, хотя внешне как и остальная хата - засраны в хлам. Хотя сама ванна и унитаз вполне себе чистые без сколов и всего такого. А так - как займусь, скорее всего выпилю стенку.

>>68877>>68883>>68884
Поясняю, т.к. недавно поднял эту тему. Я хотел (и хочу) все сделать более-менее законно и с соблюдением формальности, поэтому до всех работ пошёл в бти, спросил хуле делать, мне объяснили, что надо пиздовать в лицензированное для перепланировок архитектурное бюро. Ну я сходил. Там, собственно, сказали, что просто так дыру делать нельзя, тем более нельзя расширять ванну вместо коридора (был и такой вариант). Но можно сделать проём, если предусмотрена дверь. Поэтому генеральный план стал такой - сделать проём нужного размера, въебать туда раздвижную дверь из говна и палок (из направляющих и пары листа гипрока, лол), пригласить инспектора, он скажет ок, потом выпилить дверь навсегда (ну или до момента продажи кв, т.к. при таких сделках опять всё инспектируется и тп). Но потом я снова дошёл до местного бти и меня обрадовали, сообщив, что теперь они тоже занимаются согласованием переплаировок. Ну я грю - хочу проём запилить, можно? Они говорят - похуй, пили, но надо швеллером усиливать, хоть стена и не несущая. Ну я говорю - ок. Скорее всего при таких раскладах всё примется без проблем, если что - я занесу 10-15к дерева, чтобы избежать потенциальной волокиты. В крайнем случае придётся слепить дверь из говна и палок, как и собирался раньше. Т.к. все ща в черновую делается, это быстро и похуй. Соседям вообще капитально похуй, кстати.
Аноним 10/12/15 Чтв 08:32:38  68896
Перепроектировщики хуевы. Вы не боитесь, что ваша конура однажды сложится как домино? У меня шурин когда ремонт делал, в панельном доме в полу нарезал штроборезом каналы под проводку и ещё вдоль стен наебенил по четыре метра. Ну, а хули, жить то там не ему все равно. А когда сложится, можно все свалить на возраст дома.
Аноним 10/12/15 Чтв 12:24:46  68908
>>68896
Нахуй иди. Я вместо выпиленого куска не несущей стены швелер в проем ставлю, конструкция в итоге будет более нагрузоустойчивая, чем изначально. Стена толщиной 8 мм из говна и палок. Буквально - каркас из деоевянных реек залит какой-то смесью сортоф штукатурка.
Аноним 10/12/15 Чтв 12:52:30  68910
>Они говорят - похуй, пили, но надо швеллером усиливать, хоть стена и не несущая.

Какой смысл от швеллера, если стена не несущая и нагрузку нести рассчитана не была? Они это не объясняли?
Аноним 10/12/15 Чтв 14:19:53  68918
>>68910
Объяснили в стиле "стена не несущая, но на всякий случай надо усилить". А мне проще швеллер въебать и всё узаконить побыстрому, чем убеждать их, что он не нужен. К тому же он отлично впишется в мой сортоф лофт стай лакшери интериор десигн, который я попытаюсь навести, лол.
Аноним 10/12/15 Чтв 14:36:10  68920
>>68757 (OP)
Хорошо смоделировано все, порадовало. Но где стиральная машина, анон? руками стирать это пиздец.
Немного мозолит глаз ебаная стена, которая закрывает холодильник. Дверь ванной будет биться о холодильник, это не ок. Косая дверь в туалет тоже уныние, начиная от узлов примыкания (внезапно не существует угловых соединителей плинтуса на такие ебаныутые углы) и заканчивая общим колхозным видом. Подумай о переделке этого места заранее.

На счет открытой спальни - сразу нахуй. Я гарантирую тебе, закрытая спальня это огромный плюс. Привести гостей и не показывать срачей. Тянка пошла спать, а друзья еще в гостях. Ситуаций тысячи. Не нужно рушить стену между гостиной и спальней.

Аноним 10/12/15 Чтв 16:03:55  68924
>>68920
Не оп с такой же квартирой - косая дверь туалета может быть сложной проблемой, так как лично в моём случае проём двери железобетонный. Все внутренние перегородки - деревяшки со штукатуркой, а вот эта хуйня почему-то бетонная, с арматурой. Это не часть сантехкабины, так как остальные стены ванной/туалета тоже дерево+гипс, а... Хуй знает почему. Я сносить не стал на всякий случай, неспроста же это.

А стиральная машина - проблема, да. Я ума не приложу, куда её втиснуть, так как в ванной получается либо раковина, либо стиралка, места нет.
Аноним 10/12/15 Чтв 22:28:19  68928
(87Кб, 640x480)
(102Кб, 640x480)
>>68920>>68924
Да я, оказывается, у мамки дизайнер интерьеров, спасибо аноны, порадовали.

Для стиралки ща есть два варианта. Основной - впендюрить её под холодильник, сверху более-менее основательую горизонтальную перегородку (или стиралку в сортоф ящик) - сверху холодильник небольшого размера. Вариант пиздатый очень, я жил в микроотеле с такой конфигурацией - удобно. Большой холодильник мне не нужен. В основном живу один, но даже когда с тянкой жил - всё равно обычный совковый холодильник никогда не был заполнен даже на треть. Кроме того, можно взять почти полноразмерный холодильник с морозилкой наверху. Сам я 187 см, достану, когда надо. А надо редко - в морозилку часто не лазаешь же. Второй вариант - пихнуть стиралку под раковину в ванной. Не нравится тем, что там и так места нет + когда моешь руки, упираешься коленками. Меня это бесит просто пиздец как. Есть ещё и третий план - сделать на кухне свободную стенку напротив окна не совсем свободной. Сделать угловую ванну и рабочую панель на полстены. Места удобно ходить мимо холодидьника будет достаточно, при этом под панель можно запихнуть стиралку или посудомойку.

По поводу стены у толчка. Всё ещё хуже, чем думает анон, т.к. ирл она даже не углом, а закруглением. Я хз как они так построили, но и снаружи и внутри нет угла, есть плавный переход. Трогать не хочу, нахуй впизду. Возможно потом всё таки совмещу санузел, но это сейчас решать не буду.

По поводу отдельной спальни. Я понимаю, что так вроде пизже, если гости и тянка. Но я же сыч. Хотя тянки бывают, с одной даже жили вместе, причём в этой же хате, лол. Но я сегодня специально ещё раз долго смотрел и ходил туда-сюда по кв. Без стенки прям реально пизже обстановка. Я 90% времени бодрствования в кв буду за компом проводить. Если оставить стенку - буду сидеть мордой в стенку. Если убрать - буду в просторном ёба лофт апартменте смотреть на охуительно сделанную предварительно подсветочку псевдокирпичной стены, деревянного пола и всего этого. Мне так сильно больше нравится. А сам закуток с кроватью можно изъебнуться и отгородить стильной занавеской, сделав под неё модный карниз. На тот случай, если я всё же окажусь в хате с тянкой и кто-то из нас решит спать раньше, чем другой. В плане гостей и тем более личинусов такой вариант не работает, но у меня гости раз в год, личинусы вообще не нужны (по крайне мере пока нет денег на нормальное жильё и их содержание)
Аноним 11/12/15 Птн 14:58:17  68948
>>68928
>Большой холодильник мне не нужен. В основном живу один, но даже когда с тянкой жил - всё равно обычный совковый холодильник никогда не был заполнен даже на треть.

У тебя машины чтоли нет? Не понимаю как можно НЕ ЗАПОЛНИТЬ холодильник без ощутимых проблем с финансами. Да даже если ВООБЩЕ не готовить, каким-нибудь молоком, йогуртами и замороженной хренью все вмиг забивается.
Это я к тому, что делать планировку, предусматривающую кастрированное место для холодильника очень недальновидно, так что "отельный вариант" отметай сразу.
Аноним 11/12/15 Птн 16:01:27  68950
>>68948
Машина есть, уже много лет. И готовлю я себе сам, супы, мясо и гарниры. И я реально не понимаю, как можно забить холодильник. Когда к мамке приезжаю, выбешивает, что у неё в холодильнике сука вообще места нет, причем так было и раньше при небольшом совковом холодильнике, и сейчас при двухметровой громадине. Живет вдвоём с бабкой, едят обе вмнсте сильно меньше, чем я (187, кочалочка, другой спорт). Алсо, у мамки в хате всегда пиздец сколько хлама. А у меня везде минимализм.
Аноним 11/12/15 Птн 16:05:40  68951
>>68950
Я, правда, за продуктовыми расходняками типа молочки и овощей привык гонять раз в 2-3 дня. Но не в ашан ебаный ради сэкономить три копейки, а в ближайший норм магаз. От квартиры такой в километре, и там рядом заправка, на которую я со своими пробегами 100+ км день и рядной атмосферной шестеркой 2.8 литра все равно гоняю с той же частотой, лол.
Аноним 14/12/15 Пнд 02:08:10  69102
(151Кб, 1024x576)
(147Кб, 576x1024)
(133Кб, 576x1024)
Итак, пока я лежал лечил спину, батя захуярил усиление в проём. Сверху швеллер, по бокам квадратный профиль, внизу упирается в плиту. Я опасался, что проём получится чуть уже, чем по стенке кухни - а это очень плохо, т.к. каждый сантиметр проёма важен - надо чтобы и ходить удобно было, и чтобы барная стойка была нормального размера для последующего траха тянок. Анон, базарю, такая стойка - охуительный траходром. Так вот, квадтратная труба встала краем ровно по стенке кухни. Я рад.
Аноним 14/12/15 Пнд 03:24:17  69103
>>68928
Корзину с бельем логично на стиралку ставить. Где белье сушить будишь?
Аноним 14/12/15 Пнд 09:32:32  69112
>>69103
За все левелы жизни никогда не видел, чтобы кто-то так делал. Но у меня появился ещё один гениальный план - если таки объединить санузел, то за холодильником получается отличная ниша как раз для стиралки, корзины над ней и ещё пары полок. Думаю над вариантом.
Аноним 14/12/15 Пнд 10:17:42  69120
>>69102
Как-то недолго снимал хату с такой планировкой. Желаю тебе сделать жильё из этого недоразумения.
Аноним 14/12/15 Пнд 10:41:39  69122
>>69103
Белье сушить традиционно - на сушилке посередине комнаты. На ночь её можно ставить ближе к батарее у большого окна.
Аноним 14/12/15 Пнд 15:26:46  69137
(152Кб, 1024x576)
>>69120
Спасибо, добра.

Сегодня перед работой заехал в бти, сообщил, что хочу снести кусок второй стены, чтобы стало как на этом пиках >>68804, а также про объедиение санузла. Сказали похуй делай, отсутствие второй стены тоже швелером усиль, тогда типа ок всё примем. Готовлюсь выпиливать.

Also, задумался, как освежить аутентичные батареи. Сначала хотел их заменить на современные радиаторы, но, т.к. уже после этого решил пилить йоба лашкери лофт интериор десигн, лучше их оставить, т.к. идеально вписываются же. Но надо снять, отмыть от присхошей вековой присохшей пыли и, возможно, старой краски (хотя это не обязательно) и как-то облить новой. У кого-нибудь есть дельные мысли?
Аноним 14/12/15 Пнд 15:31:40  69138
>Белье сушить традиционно - на сушилке посередине комнаты.
Ой лол, такой-то ЛАКШЕРИ ЛОФТ! Для того и существуют штуки типа стен и комнат, чтобы не выставлять всю эту бытовуху посреди СТУДИИ.
Аноним 14/12/15 Пнд 15:37:53  69139
>>69138
1. В рот ебал жертвовать личным кофортом, ради того, чтобы не выставлять бытовуху, в то время как жить планирую один, а если с тянкой - то она же мои труселя стирать/сушить будет, хуле от неё прятать.
2. Даже если оставить все стены на месте, сушилку с бельём всё равно ставить некуда, кроме очевидного свободного места в холле/гостиной. И независимо от наличия/отсутствия стен с кровати в спальне сушилку всё равно не будет видно, а со всех остальных мест - всё равно будет.
Аноним 14/12/15 Пнд 17:38:23  69146
(155Кб, 800x600)
(243Кб, 800x600)
>>69137
Шлифуешь наружную часть, красишь и устанавливаешь декоративные окна.
Аноним 14/12/15 Пнд 17:50:45  69147
>>69146
Про шлифуешь понял, про окна не понял. Причём здесь окна, если речь про радиаторы? Или ты про накладки на них? Накладки не нужны, древние чугунные радиаторы идеально впишутся в интерьер же. Я их только ради этого оставить хочу. Also, погуглил, можно купить новые чугунные батареи, почти не дороже еврорадиаторов. Я чо-т думал такие не продают уже.
Аноним 14/12/15 Пнд 20:41:17  69152
Оп, насчет батарей - а стояки-то менять будешь? Это как бы неплохая идея, там же все трубы прогнившие поди
Аноним 14/12/15 Пнд 21:18:44  69156
ОП, ты не думал, что бти тебе нарочно картбланш даёт, чтобы потом с тебя стрясти бабла, приговаривая: "я низнаю кто вам такое говорил", или "это раньше так было, а сейчас пупкин новый закон подписал, что низя"
Аноним 14/12/15 Пнд 21:49:45  69162
(69Кб, 640x480)
(65Кб, 640x480)
>>69156
Конечно думал. Первое, что я сделал - позвонил в несколько рэндомных архитектурных бюро. В одном съездил лично пару раз, там получил подтверждение, что такую перепланировку можно делать, при условии всяких там усилений. Ну и про необходимость делать закрывающуюся дверь на кухню в случае газовой плиты мне тоже сказали. И коридор нельзя выпиливать (поэтому расширять ванну за его счёт тоже). Дверь между кухней и комнатой для согласования я легко запилю из говна и палок (раздвижную занавеску или "купэ"), коридо формально на месте, разве что я туда гипсокартонную перегородку за холодильник влеплю. Но звать экспертов для фиксирования перепланировки я буду до всяких лишних перегородок и прочего. Если при продаже или переоформление кв опять надо будет звать экспертов - легко запилю дверь и очищу коридор при необходимости.

>>69152
Батарейные стояки менять не планирую. Они вообще говоря в норм состоянии. Ну и менять только в своей квартире смысла мало, надо менять по всей вертикали. За свой счёт небогатые соседи этого делать не будут, я за них платить, понятно, тоже не буду, а жилконтора зашлёт меня нахуй, справедливо отметив, что стояки и так норм. Буду менять холодный/горячий стоят в туалете. Там холодному полная пизда, горячий заодно. И буду настаивать, чтобы жилконтора меняла на всех этажах, т.к. этим стоякам давно пизда. Я это уже с ними обсуждал, они вроде непротив. Если что, дам чуть денег, если апетиты пиздец окажутся, попробую надавить в стиле - ну я то ремонт сделаю и за свой счёт стояки поменяю и застрахую всё. И если меня затопят, страховая, выплатив мне бабоса, придёт трясти его с вас и с соседей. А т.к. стоякам очевидная пизда, а следить за ними должна жилконтора, да и денег с неё стрясти реальнее, чем с физиков - то пизда вам. Кароч посмотрим.

Also, решил таки совместить санузел. Трубы стояков ща идут вдоль стены между туалетом и ванной, думаю не будет особых проблем пустить их под коробом как на пике (белая хуета между толчком и душем).

Совмещённый санузел освобождает охуенный закуток, идеальный для стиралки и нескольких полок. Это всё даже дверью можно закрыть, будет эстетика и шумоизоляция

Прикладываю пики с актуальным на данный момент планом.
Аноним 14/12/15 Пнд 22:03:10  69164
>Летом мотокросю
Уж не ты ли чр-кун?
Боты gaerne,пригород-15 минут до просвета,мотокросс
Многое подходит

Какой у тебя бюджет кстати на всё? Не нашёл.
Аноним 14/12/15 Пнд 22:37:04  69170
>>69164
Лол да, лигивон дианон травля.
Аноним 14/12/15 Пнд 22:48:37  69172
>>69170
Не думаю.
Если бы не коробка на фото, даже не обратил бы внимание. Сам часто выкатываюсь в чр,поэтому и запомнил тебя.

Ты планировку на сайте онлайн делал? Там докупать приходится полный доступ.
Аноним 14/12/15 Пнд 23:09:24  69173
>>69172
Да, но $10 в год - могу себе позволить же. Планер этот, хоть и кривой максимально (как и любой софт для домохозяек), но накидать план и мебель там заметно удобнее, чем во всяких кадах. Тем более под моими линупсами.
Аноним 15/12/15 Втр 00:08:57  69181
>>69164
> Какой у тебя бюджет кстати на всё?
Сложный вопрос. Я, если честно, даже не пробовал оценивать всё вместе. Вместо этого делаю как всегда в своей профессиональной области хуяк хуяк и в продакшн - надо по минимуму что-то слепить, дальше будет видно. В моём случае минимум - это перепланировка (убрать стенки), отделка стен примерно как на пиках - кирпичная плитка по стене с окнами, в спальне задняя стена тоже наверно закос под белый кирпич будет, остальные стены кроме тёмных - просто белая штукатурка или может краска (как батя скажет, я сам обладаю нулевым опытом в ремонтах и отделке, а он 80 лвл), тёмные стены - это тип дерево должно быть или что-то на него похожее. Полы ебануть - для лофта нужна доска, какая именно - я пока хз. С батареями решить - точно нужно поставить краны, чтобы можно было без проблем закрыть их и снимать/менять радиаторы. Радиаторы либо купить (хочу такие же чугунные), либо имеющиеся снять/помыть/покрасить как-то. Санузел в минимум не входит, разве что стену убрать (чтобы потом не пылить, но это ваще за день делается) и стояк вдоль нужной стены пустить. Ванна/сральник ща работают, так что и сойдёт до тех пор, пока не не будет возможности/желания сделать целиком нормально. А делать там ёбаный пиздец сколько, я позже скину фотки нынешнего состояния ванны/туалета. Что там ещё. на кухне мне одному нужна только плита, раковина, холодильник ну и запланированная барная стойка, которую в первое время можно вместо столешницы использовать. Из мебели - либо кровать либо диван, стол и стул для пеки, штанга какая-нибудь, чтобы шмотки вешать. Ну и проштробить стены под проводку и сразу сделать разетки в нужных местах. На это у меня денег должно хватить, с учётом, что я сам что могу делаю, что не могу - батя. Вся остальная мебель более чем некритична. Всякие шкафы на кухне - особенно. Хочу до весны сделать минимум чтобы можно было жрать/спать/пекарить нормально с готовыми стенами и полом. Дальше по мере возможностей.
Аноним 15/12/15 Втр 08:46:55  69192
>>69137
А как ты будешь делать усиление после сноса второй стены? Йоба-швеллер на 3 метра в ширину?
Аноним 15/12/15 Втр 14:24:52  69203
>>69192
Да. Т.к. стена из говна и палок (деревянный каркас залитый цементом), то почти любой швеллер будет более устойчив к нагрузкам, чем оригинальная стена. Тем более ёба. Кроме того, реально там никакого усиления не надо, т.к. стена из говна и палок 8см толщиной ничего не держит и в планах не помечена ни как несущая ни как даже напряжённая. Усиление ставится для подстраховки (панель 60х годов, первый этаж, мало ли что) и чтобы меньше было формальных проблем при согласовании в ответственных органах. Не сложно же железки то воткнуть. И стоят они копейки, в общем-то.
Аноним 16/12/15 Срд 16:51:56  69290
(89Кб, 640x480)
(121Кб, 640x480)
Тем временем добавил в план бетонные основания плит перекрытия, швеллеры (он из ржавого железа, на картинках замаскирован под дерево), декоративные балки на потолке, ебанул пару лампочек. Выбор ламп и мебелеи в планере для лофтов никакой, слепил из того, что было. Но даже так вроде более-менее няшно получается, разве что над компом светильник мимо.
Аноним 16/12/15 Срд 17:41:33  69292
>>69102
Этож хрущеба. Ты поехавший, усиливать перегородку?
Аноним 16/12/15 Срд 17:54:53  69294
>>69290
>швеллеры (он из ржавого железа, на картинках замаскирован под дерево), декоративные балки на потолке
Уже понятно, что невывозишь. Советую невыебываться, и решения попроще выбирать. Без опыта и скила, это будет пиздец колхоз.
Аноним 16/12/15 Срд 20:30:51  69303
>>69290
А ты не думал туалет с ванной объединить? И место лишнее и минус одна дверь.
Аноним 16/12/15 Срд 20:33:31  69304
>>69303
А, всё, увидел уже.
Аноним 16/12/15 Срд 20:37:38  69306
>>69290
Над компом можно сделать потолочные софиты вместо лампы.
Аноним 16/12/15 Срд 21:13:32  69308
>>69290
Угловой диван
КИРПИЧИ
обои

няшно,)_))
Аноним 17/12/15 Чтв 01:19:17  69325
(143Кб, 1024x584)
(162Кб, 584x1024)
(157Кб, 1024x584)
>>69292
Тренд почитал бы. Усиливаю по указанию бти "на всякий случай", т.к. это сильно увеличивает шансы согласовать перепланировку бесплатно без смс.

>>69294
>Без опыта и скила, это будет пиздец колхоз.
Батя строит загородные дома под ключ уже хз лет 15 наверно. В смысле лично строит, крайне изредка нанимая подсобников. И кирпичные и пенобетонные и из бруса и из круглых брёвен. Крыши, внутреннюю отделку, все коммуникации, всё кароч от и до. Живёт в 2х км от квартиры. Так что колхоза не будет.

>>69306
Ну да, как вариант. Свет от балды пока накидан (как и всё остальное), буду рад идеям.

>>69308
Мамкин дизайнер в тренде, все в 3dmax. Предложи норм вариант или иди нахуй Где ты там обои нашёл, в глаза что ли долбишься?

Сегодня я выплил к ебеням последнюю кладовку вместе с соедствующим дверным проёмом, теперь нужно вынести говно и палки, тысячи их.

Аноним 17/12/15 Чтв 03:46:43  69328
>>69325
>Батя строит загородные дома под ключ уже хз лет 15 наверно.
Ты не понял. На твоих "эскизах", все это превращается в колхозный пиздец. Батя не спасет.
Аноним 17/12/15 Чтв 12:01:51  69341
>>69325
Любопытно, а почему у тебя какая-то... двойная балка у стены к соседям? Та что за говношкафом картонным.
Аноним 17/12/15 Чтв 12:04:30  69343
>>69341
1. Картонный говношкаф - это бывшая дверь в кладовку, прислонённая к стенке.
2. Никакой балки нет, это на потолке и стены след от стены кладовки, см пики "как было"
Аноним 21/12/15 Пнд 17:54:22  69626
(83Кб, 1024x584)
>>69343
Не, я не про след от кладовки, я про всю стену к соседям - выглядит словно балка потолка опирается на еще одну, потоньше.
Аноним 22/12/15 Втр 14:21:44  69687
(685Кб, 1133x772)
>>68757 (OP)

ОП-хуй, ты дебил?
Ты дебил.

1. Нахуй раздельная ванная и санузел? Нахуя!?!? Воняет говном? Ставишь вытяжку с принудительным включением вони не почувствуешь уже когда потянешься за освежителем. 5 лет так живу, когда сру в гостях вечно говном воняю, ибо "а вы что не знали, что надо пользоваться освежителем?". Надо строить с головой, блять, а не освежителем решать проблемы с вытяжкой.
Короче, всё, что у тебя перед дверьми, отдай ванне+с.у. На выигранную площадь отодвинь от окна кухню.

2. Совместная кухня+гостинная+спальня? Ты дебил? Захотелось картошечки - нюхать всем? Или ты хочешь газовикам на лапу всё время давать, чтобы закрывали на нарушение ТБ? Мне дверь в кухню жизнь спасла. Пьяный поставил яйца варить и ушёл. Естественно вода залила газ и понеслось. Когда жена с ночной пришла, в гостинной лишь чуточку пахло, ибо дверь. Обосрались, проветрили, но живы.

3. Куда смотреть с твоего дивана? На кухню? Ты дебил? Нахуй тебе в гостинной шкаф? Ты совок? Убери платяной шкаф в спалью поставь за спиной столика с компом. Поставь охуенный диван на его место напротив нормальной (не угловатой) стены между ванной и гостинной и будет счастье!

4. Не уменьшая спальню, ужми до максимума кухню и ванну (тебе в них не жить), сделай коридор пошире, чтоб уличное там вешать можно было бы. 120 см будет в самый раз.

Забахай крутую и, блять, МАКСИМАЛЬНА БЛЯТЬ, большую гостинную. Чтобы из неё не сильно зиял коридор, не виделась шкворчащая кухня и твоя дрочильня. Чтоб огромный диван с телеком, и приятная (не-кухонная) столовая, которая будет в самый раз под пати или романтику. И всё: таскай тянок на охуенный диван перед збз телеком. Они это любят :)

Хуй ты меня, конечно, послушаешь, но хоть высказался.
Аноним 22/12/15 Втр 18:50:49  69712
>>69687
>Ставишь вытяжку с принудительным включением
Насколько я понимаю, во многих хрущах окошко вентиляции есть только в ванной и на кухне, в туалете - только решетка в ванную. Не уверен, что вытяжка в туалете в этом варианте будет прекрасно работать.
Аноним 22/12/15 Втр 20:20:48  69717
>>69687
Охуенно, когда прихожая в гостиной.
Аноним 22/12/15 Втр 21:14:08  69724
>>69626
Теперь понял. Сегодня выносил говно и палки, которые были кладовкой и дверным проёмом, специально посмотрел. Эта балка - реально то ли балка, то ли усиленный кусок вертикальной плиты.

>>69687
>Нахуй раздельная ванная и санузел?
Я уже решил объединить, о чём писал итт с картинками >>69162

>2. бред про кухню, гостинную, картошечку и пьяные яйца
Во-первых, будет вытяжка, под неё сейчас есть вентиляционный канал прямо над плитой. Во-вторых, я снимал овер дохуя студий и бывших однух без стенок с вытяжками, нигде ничем не воняло. В третьих, я выпиваю бокал коньяка на новый год и др и то обычно не дома. В четвёртых - каким газовщикам, в эти халупы в жизни никто никогда с проверками не приходил. На момент согласования перепланировки в бти коридор будет пустой, между комантой и кухней, если нужно, поставлю раздвижную дверь из говна и палок. И вообще ты какой-то поехавший в этом пункте, честно.

>3. Куда смотреть с твоего дивана? На кухню? Ты дебил?
Ты сам дебил, ну. Смотреть в телевизор, смотри последние пики >>69290 (только про балки не воняй, они в качестве эксперимента запилены)

>Нахуй тебе в гостинной шкаф?
Шкаф у меня вообще-то в прихожей. Если бы ты не долбился в глаза, то увидел бы в первом сообщение треда пояснение о том, что меня заебала микроприхожая и теперь она будет занимать часть бывшей большой команты. В этой части стоит шкаф, в нём верхняя одежда, а также всякие мои лыжи/доски/защитное снаряжение и, т.к. шкаф большой, пылесосы, сушилки, гладильные доски и прочая бытовая поебота. Кстати, совок ты сам, судя по советам и предложенному тобой плану.

>ужми до максимума кухню и ванну
Так и есть - совок. В рот ебал микрокухню, вообще всё микро в рот ебал. Нужно такое, где удобно ходить без маневрирований.

В целом за предложенный план благодарю, хотя он мне не нравится нихуя, ибо предельный совок. С микрокухней, где вдоль окон какие-то шкафы ебаные, как ты себе это вообще представляешь, лол. С охуенным диваном ровно во входную дверь. И тп.
Аноним 22/12/15 Втр 23:01:59  69733
>>69724
В моей мухосрани ежегодные проверки от газовиков, у кого газовая горячая вода или котлы - каждые три месяца.
Аноним 23/12/15 Срд 00:18:35  69736
>>69733
Я в пригороде дс2, конкретно в этрй хате года 4 набегами. Всем похуй. Точно знаю, что в последние 10 лет никаких проверок не было. Рос в дс2 в спальном районе, до 20 с мамкой, тоже ни одной проверки. Всем похуй на загоны для рабов-пролетариев прост, даде фильм недавно на эту тему сняли.
Аноним 23/12/15 Срд 00:22:01  69738
>>69736
Загоны? Судя по качеству коммуникаций и установщиков плит, лучше бы по чаще ходили. А вообще, у меня хороший город в плане коммуеальщиков. Алсо, пугугли про проблемы с газом в домах, проблем частая, хоть по первому и не любят про это говорить.
Аноним 23/12/15 Срд 02:55:59  69745
(1290Кб, 1280x960)
>>69724

Тут, конечно, надо определиться с целями оп-поста. Если ты хочешь показать как ты могёшь выпендриваться в своём фотошопе, флаг в руки, ёпта. Только не надо нам тут ляля про я-у-мамы-дезигнер. Ибо ты ссышь сам себе в глаза вот этими вот словами "а мне так удобно" и "я готовил бутерброт с чаем и мне на кухне не воняло". Другое дело если ты хочешь что-то толковое, что позже не будет мешать жить ни тебе, ни твоим сожителям, ни тем, кому ты будешь продавать.

2.1 Про пьяные яйца и газовщиков - хочешь верь, хочешь нет. ТБ написано кровью. Если крови много, ебашь на дурака, хули тут тогда спрашивать. Это как с пристёгиванием за рулём: тебе говорят, что пристёгивать ремень обязательно, а ты отвечаешь, что будешь ездить аккуратно! Ну ахуеть, аккуратный ты наш.

2.2 Я/жена юзаем микроволновку, кофе-машину, тостер, духовку, плиту, посудомойку. С вытяжкой средней мощности при открытии двери в комнату жахает так, что мама не горюй. Опять же, если тебе какого-то там дизайна хочется, барабан на шею намотай и наводи красоту, хулетут.

2.3 Дверь из говна и палок - приплыли. Ты то дезигнер от бога, то обмазываешься говном и палками.

3. Лофтовские балки и кирпичи норм, глаз не колют. Собственно, это как раз дело стиля. Телек смотреть кривовато, надо хотя бы отразить диван, чтобы угол в углу был. Учти также, что за телеком должен быть светлый фон, чтоб глазки не посадить (требования ТБ).

4. Распидорасить прихожую на четверть квартиры – этапять. Нахуярить в этой малютке коридоров, подходов, проходов на мало-используемых площадях — этадесять. Если ты промоешь зассанные глаза, то заметишь, что я как раз за нормальные проходы, не в пол-оборота. Только нахуй тебе подход к твоим плитам по всей ширину всей кухни? По сценарию использования у тебя 1 человек на кухне/в ванной. Нахуя ему 1,5 х 2 метровые площади перед кухонным и ванным оборудованием? Чтобы плясать? Приготовил/помылся — вышел. Нахуя эти обзорные площади? Дефилировать жёпой перед зеркалом во всю стену?

5. Совок — это тот, кто сделал прихожую 12 квадратов, а гостиную 9. У кого в спальне стоит полочка с зеркалом вместо шифоньера. Кому без разницы утилитарное помещение или жилое: должно быть «многа места в талчке». У совка маятник качнулся в другую сторону и там, где раньше было мало, теперь надо вжахнуть не столько, сколько нужно, а столько, чтобы разгуляться. Погулять в толчке, подойти к полочке, поплясать на кухне. Цирк уродов, хули.

Короче, паразитные площади - суть концептуальная убогость. Я бы пересмотрел планировку и плясал от гостиной.

И это... Шкафы - зло. Чем больше поставишь, тем больше, не думая, заполнишь.


Если хоть один совет поможет, считай не просто так писал. Удачи в ремонте.

Полы-то менять будешь?


69687-кун
Аноним 23/12/15 Срд 03:15:21  69746
>>69745
Цели - я хочу сычевальню, в которой мне норм прежде всего одному и тянок ебать. В какой-то далёкой перспективе - может чтобы жить с тянкой (к тому времени можно спальню снова стенкой отгородить, это неслжоно)

Я понимаю про тб и изолированную кухню. Но реалиии таковы, что за последние многолет в этой кв дверь из кухни в коридор ни разу не закрывалась (и это справедливо для 99% подобных хат). И из прихожей в комнату тоже. Это тупо неудобно Т.е. кухня нихуя не была изолирова. И теперь не будет, но зато теперь будет удобно.

Дверь из говна и палок исключительно на момент присутствия ЭКСПЕРТА из БТИ, чтобы согласовать перепланировку и не возникло пиздлявости про НАДА ДВЕРЬ, потому что реально - она нахуй никому не нужна, см выше.

Отразить диван - может быть. Also, телек предполагается на поворотном кронштейне, на пике видно. Т.е. он повёрнут на 10-20 градусов в строну дивана, этого хватить, чтобы было норм.

Совок - это то, что ты предложил на пике >>69687 Это блядь тотальный совок, хуже, чем в оригинале. А я задумал просторную на сколько возможно кухню, прихожую, где не цепляешься плечами за стенки и шкафы, много место по центру комнаты, где можно отжаться там, потянуться (я могу в шпагаты, ололо) или блядь сесть и помедитировать в нирване. Ну и простор - это заебок. Поэтому решил выпиливать стенку между спальней и гостинной. Я прям на месте садился там и понимал - вот я пялюсь в стенку - и это не oche, а если пялюсь мимо неё - заибись выходит. Also, есть хитрый план протащить hdmi кабель от телека до пека, тогда я смогу заниматься важными делами на пека (я у мамки инторнет предприниматель), имея в фоне киношку на телевизоре, который в качестве второго монитора подключён.

В моей планировке вроде нет паразитных площадей. Холодильник, стиралка и полочки над ней - всё по закуткам. Су совмещён, куда его меньше делать - я хз. Он и так микро. Шкафы зло, и я без них обойдусь легко, но шмотки удобнее, когда в шкафу на вешалках висят, а не на стульях/диванах разбросаны.

Полы менять не буду. Буду шлифовать паркет, класть подложку, сверху пол. Доску/ламинат/пробку - пока не решил.
Аноним 23/12/15 Срд 03:30:11  69747
>>69745
Кроме прочего, ты проебался с метрами на пике. "Сычевальня", например, нихуя не 9м, а 14.
Аноним 23/12/15 Срд 14:12:50  69770
>>69745
>И это... Шкафы - зло. Чем больше поставишь, тем больше, не думая, заполнишь.
>У кого в спальне стоит полочка с зеркалом вместо шифоньера.
Вот это логика.
Аноним 01/01/16 Птн 21:30:04  70261
(172Кб, 1024x576)
(148Кб, 1024x576)
(146Кб, 1024x576)
(62Кб, 324x576)
Праздник к нам приходит, но я обычно выпиваю весьма символически, поэтому днём первого числа не мучаюсь от похмелья и не ищу, где бухнуть вечером, а продолжаю пилить сычевальню мечты в стиле лакшери лофт апартментс интериор десинг ® ™ Сегодня начал выпиливать очередной кусок стены между двумя комнатами. Когда закончу, из стен останется только совместить санузел.
Аноним 02/01/16 Суб 01:57:32  70278
>>70261
На пихах деградация? На первой так няшно все. Минимум усилий и была бы студия норм. В которой жить было бы заебись, а теперь у тебя пару лет ремонта, поздравляю!
Аноним 02/01/16 Суб 05:47:30  70285
>>70261
Бампер что ли ремонтировал?
Пылесос специальный? Покупал или напрокат взял?
>>70278
Наркоман, чтобы из последнего пика сделать первый нужно недели две, максимум.
Аноним 02/01/16 Суб 12:09:59  70292
>>70285
Бампер лежит ждет весны и доукомплектации передним из м-обвеса. Пылесос достался в наследство. Норм, кстати, какой-то сорт оф промышленный, я им кучу мелкого мусора и строительной пыли уже убрал.
Аноним 03/01/16 Вск 01:14:52  70361
>>69746
Шалом, ОП. Я не тот анон, с которым ты устроил словестную перепалку, но вот хотелось сказать, что у него действительно более продуманный вариант, серьезно. Я вот скоро буду брать квартиру и сейчас пытаюсь нахвататься классных идеек.
Будь я тобой, запилил бы почти как тот анон предложил, только единственный трабл все же с хранением шмотья, ибо в его варианте, как по мне, этого пространства маловато.
Тащем-то, я бы взял кровать в икее которая с выдвижными ящиками под ней - очень удобно хранить постельное белье и всякие полотенца (они дохуя места занимают), туда же можно в сумках запихнуть несезонную одежду. Для тебя же наверняка не проблема это приобрести в ДС2. Вот примерчик, хотя я уверен, что ты меня понял:
http://www.ikea.com/ru/ru/catalog/products/S19018769/
Вот второе, что обязательно нужно запилить - классненькую мебель в прихожей. Хоть на пиках и подразумеваются такие вещи, я бы посоветоват глянуть сюда:
http://www.ikea.com/ru/ru/catalog/categories/departments/hallway/11466/
Как по мне, очень практично.
Забей на тот огромный шкаф в прихожей. Если тебе будет мало того шкафа за пекой - запили двухсекционный вместо односекционного - там места для его расположения хватит.
Аноним 03/01/16 Вск 22:46:51  70416
>>68757 (OP)
Сделал так же по планировке. Только дверь в спальню перенёс. И перепланировка не узаконена. Расскажи про эту процедуру, плз.
Аноним 06/01/16 Срд 21:32:26  70642
>>70416
Бамп вопросу. ты в Парголово?
Аноним 07/01/16 Чтв 22:10:25  70702
>>70261
> продолжаю пилить сычевальню мечты в стиле лакшери лофт апартментс интериор десинг ® ™
> Сегодня начал выпиливать очередной кусок стены между двумя комнатами

Мне нравится твой стиль повествования, ОП. Успехов.
Аноним 17/01/16 Вск 15:45:19  71259
(151Кб, 1280x960)
>>70278
>а теперь у тебя пару лет ремонта, поздравляю!
Бич плиз, пара лет ремонта в такой квартире выглядит вот так.
мимокрок, мусор этот вывез давно
Аноним 17/01/16 Вск 18:46:23  71273
>>71259
То гомосексуалист,и потолки у тебя козьи.
Аноним 17/01/16 Вск 20:56:10  71294
>>68776
Лучше в городе жить, чем в пригороде, но с таким видом из окна.

Аноним 17/01/16 Вск 22:03:28  71308
>>71273
Потолки такие же как у опа, в общем-то. Вообще все такое же, только дом блочный, а не панельный. И полы я снимал.
Аноним 20/01/16 Срд 17:25:14  71558
>>70361
>Будь я тобой, запилил бы почти как тот анон предложил
Но я, будучи собой, хожу по ставшим внезапно просторными без лишних стен 43 квадратным метрам и мне это нравится прямо дохуя. Последний вариант планировки, когда стиралка с полками за холодильником, а санузел совмещён - вообще охуенен. Так и ванну оставить можно и стиралку звукоизолировать и на кухню вместо стиралки посудомойку поставить. Кровать стоит в уютном закутке, жаль только, что он без окон. Остальное - прям охуенно. Реально сейчас через день в кв бываю, и каждый раз как захожу - радуюсь, как же охуенно стало в плане пространства. Его как будто в 5 раз больше, чем было.

>>70416
Ну я писал уже - пришёл в бти, спросил, хуле надо, чтобы узаконить. Они сначала засылали во всякие там архитектурые бюро, а через пару недель сообщили, что скоро станет возможным через них согласовывать. Ну я пришёл через месяц, и сказал - сейчас так, хочу так. Что нужно? Они сказали - усиления проёмов запили и всё согласуем. Усиления запилю (одно уже сделано) дальше посмотрим, что выдет. Also, перед переделками заказывал техпаспорт помещения (приходил иксперт, отмечал отметки), на тот случай, если что-то пойдёт не так, чтобы по бумагам не было переделок вплоть до моих реальных начинаний и меньше всяких штрафов.

>>70702
Лол спасибру :3

>>71259
ЛОл, у меня так было, когда я после бабули в кв заселился. Только вместо строительного мусора всякое говно, старая мебель, палки какие-то, ковры, картины. Реально большая часть друг на друга свалена была. Я полгода сеансами по 2-3 ходки на помойку в день 1-2 дня в неделю всё это говно выносил. Also, сейчас кроме мусора (который регулярно появляется, т.к. продолжаю выпиливать стены) моя кв примрено так и выглядит - голые стены, старые полы, никакой отделки. Но я планирую закончить максимум за год, а основной минимум - полы, стены, кровать и раковина/плита на кухне - вообще за полгода.

>>71294
Я блядь не выбирал где жить. Спасибо, что хоть здесь условно своя хата есть.

Стал совмещать санузел - выпиливать стену между туалетом и ванной. Она, сука, ВНЕЗАПНО максимально кирпичной оказалась. И сделана на совесть, я перфоратором и кувалдной за 5 часов сегодня может восьмую часть только разбомбил, а стена всего ничего, см план. Заебался пиздец, даже сфоткать забыл.
Аноним 20/01/16 Срд 18:56:32  71571
>>71558
>Стал совмещать санузел - выпиливать стену между туалетом и ванной.
Ну вот зачем, лел. Проебал один из немногих плюсов советских планировок. Теперь енжой йор пары говна на зубных щетках и прослушивание как дрищет твоя тня пока ты мылишь свой пиструн.
Аноним 21/01/16 Чтв 00:07:27  71589
(179Кб, 1280x960)
>>71558
У меня мусора фактически не осталось, пикрилейтед. На самом деле, по времени-то тоже не хотелось бы пару лет делать, лол, но уж как получится.
Аноним 21/01/16 Чтв 11:55:53  71617
>>71571
Потому что вместо входа в ванну можно отлично разместить стиралку и полки на дней. Это просто охуеть как удобно >>69162
Аноним 21/01/16 Чтв 22:48:24  71657
>>71617
Окай, дело твое. Вижу у тебя планировочка та еще и кроме сноса перегородки ничего особо и не сделаешь.
Аноним 22/01/16 Птн 04:10:41  71670
>>71589
Охуенный лофт запилил.
Аноним 22/01/16 Птн 07:16:22  71672
>>69181
К черту плиту, купи мощную индукционную варочную поверхность. В твоем случае площадь - ценный ресурс.
мимо подписался на тред
Аноним 22/01/16 Птн 11:21:56  71691
>>71670
Это не лофт, а студия. Лофт - это бывшее производственное помещение приспособленное для проживания.
Аноним 22/01/16 Птн 15:16:01  71708
>>71672
В домах с газом электричество стоит не oche для индукционных варочных поверхностей ((
Аноним 22/01/16 Птн 16:48:32  71711
>>71691
Не оправдывайся, хипстор.
Аноним 22/01/16 Птн 20:13:07  71721
>>69746
Сигнал hdmi затухает на 10 метрах без услителя
Аноним 22/01/16 Птн 22:30:04  71728
(187Кб, 1920x1079)
>>71589 Раз уж стены шатать начал, то может и туалет подкорректировать? На кухне может получится достаточно неплохая спальня. В идеале перенести бы спальню с с/у на другой конец квартиры, только придется ставить насос для канальи, да и хуй согласуешь.
Аноним 22/01/16 Птн 23:27:18  71735
(158Кб, 940x477)
>>71259
Это все херня. Я как-то в школе за деньги согласился подобное вынести. Там дедуля собирательством занимался долгие годы. Было всё, начиная от обычных досок со свалки, заканчивая предметами обихода.
Так мы из трёшки вынесли столько,что оно еле влезло в пикрелейтед,который пустой пригнали для нас. Не вру. Часов 6 всё вниз спускали 3 человека. Будь постарше, половину бы себе забрал и продал. А тогда кроме мороженого ни о чем не думал. Выкинули какие-то часы старинные с маятником, исчезли через 5 минут из бака этого. Через некоторое время увидел подобные с ценой и очень взгрустнул. А там подобных штук прилично было лол.

ОП ты же перепланировкой занимался.
Есть одна кладовка.
По факту-это два листа фанеры, которые стоят в углу. Просто фанера. Они даже до потолка не доходят,там сверху антресоли.
Но в плане отмечен квадрат-кладовка.То есть на бумаге видно. Как думаешь, чтобы выкинуть, надо заниматься бумажной волокитой?
Аноним 23/01/16 Суб 00:33:51  71738
>>71728
Я мучительно думаю над санузлом, с одной стороны, мне тупо неприятна идея объединения, с другой - места сэкономится дохуя, можно будет спокойно разместить и стиралку, и раковину и ванну без всяких компромиссов.
>еле влезло в пикрелейтед,который пустой пригнали для нас. Не вру.
ну так хули, верю, весь тот хлам с пика едва влез в 3 китайских грузовика (должны были тоже привезти пухто, но проебались и вывозили по частям). И песочек, песочек, тонны его.
Аноним 23/01/16 Суб 09:29:34  71754
>>71728
Бля, а ведь охуенная планировка-то. Для спальни по сути больше и не надо, зато появляется такая-то гостиная в 30 метров.

мимохуй
Аноним 23/01/16 Суб 12:55:22  71761
>>68757 (OP)
> благо помойка в 300 метрах за углом
Че так близко? Даже дома воняет наверное?
Аноним 23/01/16 Суб 21:45:34  71799
>>71721
Спасибо, учту. Вряд ли там больше 5 метров провода получится.

>Как думаешь, чтобы выкинуть, надо заниматься бумажной волокитой?
Думаю нет, т.к. скорее всего без проблем можно оформить постфактум, а если проблемы - запилить обратно за час без особой грязи.

>>71761
Ну может 400. Расположение удачное, сразу как кончается мой дом перепендикулярно ему стоит другой. И помойка в конце этого второго дома. Т.е. из двора её не видно, но при этом она не далеко. Мусоропрвода нет что тоже плюс - нет грязи, вони, крыс
Аноним 24/01/16 Вск 15:26:05  71851
Разбомбил сегодня стену между туалетом и ванной до конца, осталось вынести мусор - тысячи его - и запилить усиления в прихожей и между комнатами. Тогда пойду в бти вызывать эксперта, чтобы оформить перепланировку.
Аноним 24/01/16 Вск 15:31:21  71853
>>71728
Где на пике кухня?
Аноним 24/01/16 Вск 17:49:47  71866
Оп, а как будешь менять проводку, ту, что на освещение идет? Там же ебота, провода идут у соседей сверху по полу.
Аноним 24/01/16 Вск 20:02:51  71878
(250Кб, 1920x1079)
(7Кб, 300x145)
>>71853 Стиралку на кухню, холодильник в шкаф.
>>71866 Если под штукатурку, то ВВГ-Пнг 3х1.5 + "Дюбель-хомут плоский 10х5"
Аноним 24/01/16 Вск 22:30:14  71905
>>71799
>запилить обратно за час без особой грязи.
да ты ахуенный парень.
что-то даже и не подумал в эту сторону, там же два листа гипрока в случае чего поставить и готово обратно.
спасибо.
Аноним 03/02/16 Срд 12:29:30  72763
Выходи на связь, оп
Аноним 03/02/16 Срд 16:48:14  72767
>>72763
Он в бегах,как сможет отпишется.
Аноним 03/02/16 Срд 21:54:44  72801
>в ближайшем пригороде дс2
Такие дома строились за месяц целиком. Ремонт будет стоить дороже чем квартира.
Сломать и сжечь.
Аноним 04/02/16 Чтв 20:51:30  72879
(33Кб, 1627x800)
Посоны, не оп, но квартира такая же. Делаю перепланировку, вопрос, в чем минусы пикрилейтед планировки (вместо дефолтной херни с широкой дверью и кладовкой)?
Хочу 2 раздельные комнаты, не хочу совместный санузел, так что, как понимаете, вариантов особо нихуя. Мне тут советуют сделать центральную комнату сделать поменьше, новый коридор пошире и сделать встроенный шкаф. Я как-то хз, стоит ли жертвовать ради шкафа и без того мизерной жилой площадью.
Аноним 04/02/16 Чтв 22:19:57  72886
(429Кб, 598x421)
>>72879
Какой большой коридор в который ничего нельзя поставить.
у меня как у ОПа, хочу снести стену между туалетом и ванной и запилить дверь на кухню. Тогда в коридоре можно сделать годную кладовку для великов. И холодильник туда поставить.
Аноним 05/02/16 Птн 13:06:36  72921
(262Кб, 2027x480)
(255Кб, 1931x480)
(94Кб, 450x800)
(95Кб, 450x800)
>>72886
Привет бро. Кладовка вместо коридора - хорошая идея. Я, собственно, почти так и делаю, только не кладовку, а холодильник (со сторных кухни) и стиралка с полками над ней со стороны прихожей. Ну и выпилил блядские кладовки в комнатах. Генеральный план здесь >>69162

А на данный момент мой йоба лакшери лофт апартментс интериор десинг ® ™ выглядит пикрилейтед. И мне охуеть как нравится то, что получается. Такая то кухня, столько то места в бывших комнатах. Теперь по плану штробить стены под проводку. Ну и тянуть её, собственно. Сделав норм электрощиток.
Аноним 05/02/16 Птн 17:06:34  72941
(988Кб, 1840x791)
>>72921
Я решил кабель канал по стене пустить, чтобы пекарни питать, и иметь возможность себе делать розетки там, где нужно без уродских переносок.
Схожу в ABB, посмотрю, что у них там есть.
Аноним 06/02/16 Суб 10:59:53  72995
>>72886
На той пикче - коридор из прихожей в дальнюю комнату.
Аноним 09/02/16 Втр 18:08:38  73361
Оп на связи. Сходил в БТИ, сказал - всё зделол, го документировать перепланировку. Сначала местная тётка сообщила про необходимость делать акт на скрытые работы (про усиления) в какой-то профильной организации. Потом вспомнив, что я не трогал несущие стены, позвонила чо-то уточнила, сказала - всё ок, дала две квитанции - одну на 10тр за согласование перепланировки, вторую на ~2.5тр за выезд их эксперта, который отметит в своих бумажках новый план кв и отдаст дальше. А мне и отлично, это не 170к за "перепланировку под ключ". Эксперт должен придти в середине марта, к этому времени надо нарастить межкомнатную стену гипроком до железной балки (на панораме в предыдущем посте видно дырку, лол)
Аноним 13/02/16 Суб 12:06:37  73710
>>72921
Паркет 10 из 10 просто, всегда о таком мечтал. Еще бы не бгмерзкий забор под окном, была бы просто сказка.
Аноним 14/02/16 Вск 19:24:34  73847
>>72921
А что делать с этими трубами (отопление в ванной) при объединении санузла? Металлопластик, соединение под прямым углом скрытое под полом, и в сторону их?
мимокрокодил
Аноним 15/02/16 Пнд 18:35:07  73914
>>73361
>одну на 10тр за согласование перепланировки
Что и зачем, если ты не трогал несущие конструкции?
Аноним 15/02/16 Пнд 18:44:10  73916
>>73914
Даже снос картонного встроенного шкафчика в хрущевке считается перепланировкой.
Аноним 16/02/16 Втр 15:06:05  73991
>>73916
Exactly.

Двое тёток из бти приехали сегодня вместо 16го марта. Ну и отлично, раньше будут документы готовы.

На днях начинаю чистовую отделку. С выравнивания стен.
Аноним 16/02/16 Втр 15:07:03  73992
>>73847
Да, под потолком колено и трубы вдоль стены, потом в короб уберу. Т.к. первый этаж, в подвал можно прям так вдоль стены увести.
Аноним 18/02/16 Чтв 23:07:56  74164
(158Кб, 1405x540)
Тем временем одна стена более-менее выровнена. Идеально выводить смысла нет, т.к. по всей площади будут клеится пластины звукоизоляции.
Аноним 18/02/16 Чтв 23:19:13  74165
>>74164
Не по маякам делали, что ли? А почему?
Аноним 19/02/16 Птн 16:48:09  74207
(179Кб, 1280x960)
Разъебал-всю-хрущевку-кун на связи. Закупился материалами, мгновенно осознал что газобетон был ошибкой, лол. Значительная часть блоков мокрая, крошится очень легко, короче пиздец, боюсь что даже хлопать дверями в дверном проеме из этого трэша будет опасно.
Газобетон выбрал потому что перфоратором плиту перекрытия долбить не хочется (хуевое качество, минимум в 5 местах здоровые выбоины в полу там где соседи сверлили потолок), но можно было бы придумать что-то с гипсокартоном, наверное - поставить брус какой-нибудь на пол, сверлить его, например.
Алсо, с грустью прихожу к выводу что все же придется совмещать санузел, уж больно мало места без этого. Похуй, все равно один живу.
Аноним 19/02/16 Птн 20:45:46  74221
>>74207
он просто свежий, не набрал прочность, хуево, что из упаковки достал, в целофане для него микроклимат оптимальный для этого
пусть отлежится
построил dom из газобетона
Аноним 19/02/16 Птн 22:45:53  74233
>>74207
Нормально все будет с газобетоном, он пока новый крошится прям в руках, а потом заебок.
Аноним 19/02/16 Птн 22:49:39  74235
>>74207
И да, ничего плохого в совмещенном санузле нет. Всегда можно очко сполоснуть, да и намного просторней по итогу, учитывая что сложно одновременно и срать, и в ванной плескаться.
Аноним 19/02/16 Птн 22:56:47  74238
>>74235
У меня совмещенный су 5 квадратов, но с женой и личинкой некогда ими насладиться.
Аноним 20/02/16 Суб 13:58:54  74271
>>74207
Зачем ты сначала сломал стены, а теперь собрался строить новые? В других местах что ли? Или в чём смысл?
Аноним 20/02/16 Суб 19:45:44  74294
>>74271
Их тут вроде двое с такой планировкой.
Аноним 21/02/16 Вск 22:03:10  74388
>>74294
Ответ, на который ты ответил, спросил я - оп этого itt треда. Мне непонятно, нахуя анон с такой же планировкой сломал все стены и строит новые.
Аноним 07/03/16 Пнд 17:35:05  75654
(62Кб, 752x500)
Бамп.
Аноним 09/03/16 Срд 02:56:22  75807
(224Кб, 1317x1043)
Отдельный тред создавать не хочу, спрошу тут. В какую сторону сделать открываться дверь в большую комнату (15 метров которая)? Внутрь комнаты (в какую сторону)? Или в коридор (очевидно, что к нижней стене).
Аноним 09/03/16 Срд 02:56:52  75808
>>75807
Сажа приклеилась
Аноним 09/03/16 Срд 09:28:50  75828
>>75807
Согласно пожарной безопасности все двери должны открываться по движению эвакуации. Да и неудобно, сожрет пространство в комнате, если внутрь.
Аноним 09/03/16 Срд 09:29:49  75829
>>75807
Что за хитрость справа? Кусочек 0,6 квадрата в чужую квартиру.
Аноним 09/03/16 Срд 11:48:49  75855
>>75829
Кладовка, соседи предлагали выкупить кусок, я отказался. Сделаю там мега-шкаф или серверную, лол.
>>75828
Раньше в комнату открывались, если что. Возможно, твои правила для офисных помещений, а не для жилых?
В малую комнату делаю внутрь к левой стене открывающуюся.
Аноним 09/03/16 Срд 12:15:48  75860
>>75855
Сколько предлагали?
Аноним 09/03/16 Срд 12:20:27  75863
>>75860
"По рыночной цене" а она у нас 30к руб за метр, лол, нах надо
Аноним 09/03/16 Срд 15:22:19  75873
>>75807
Какой необычный хрущ. И кладовка к соседям, и большая комната - дальняя, а не средняя. Как по мне, двери лучше открывать в коридор, все равно там ставить ничего не будешь.
Аноним 09/03/16 Срд 16:40:21  75875
>>75807
Я бы поставил раздвижную и не ебал голову.
Аноним 09/03/16 Срд 19:02:36  75901
>>75807
А можно еще тупой вопрос? Зачем в синем шкафу, который нарисовал ОП, утоньшение стены 0,8х0,12?
Аноним 09/03/16 Срд 19:02:56  75902
>>75875
Она займет места на стене внутри больше, чем обычная же.
Аноним 09/03/16 Срд 20:58:45  75915
>>75901
Это советские инженеры предусмотрели место для вешалки, что бы пальто и шубы не выпирали в и без того узкий коридор. Ниша представляет собой заложенный в 1 кирпич дверной проем, у соседей точно такая же.
>>75873
Кирпич, год где-то 1963-1964, не помню. Капитального ремонта (не считая поклейки обоев и побелки потолков) не видела. Если интересно могу доставить фоточек.
>>75875
Думал об этом, возможно так и сделаю, нужно посмотреть на сколько дороже выходит. Внутрь комнаты "вверх" по схеме, там всё равно в углу ничего стоять не будет, ну ммаксимум отступ 15 см сделаю, если шкаф поставлю. Большая комната планируется гостинкой-кабинетом, шумоизоляция особая не нужна. Слышал что раздвижные двери обладают плохой.
Аноним 10/03/16 Чтв 00:56:08  75929
>>75863
Лол, ну так-то да, а вот тыщ за 200 можно было бы продать, конечно.
Аноним 10/03/16 Чтв 01:58:04  75930
>>75929
Вся квартира 1400-1500 стоит
Аноним 10/03/16 Чтв 02:08:00  75932
>>72879>>69687
Котаны, вы в чем квартиры свои моделируете?
Аноним 10/03/16 Чтв 09:09:25  75947
>>72879
>не хочу совместный санузел
Микро ванная комната и туалет с куском ненужного пространства. Ну нахуй.
Можно дверь в зал наискосок сделать., тогда будет много места в прихожей.
Аноним 10/03/16 Чтв 16:56:31  75993
>>75932
Я в Sweet Home 3D тот план сделал. Но всерьез ничего расставлять там не пытался ибо на дизайн похуй, мне б стены/пол сделать.
>>75947
Да я уже понял, передумал. Жить я буду один, вероятность тян или гостей довольно низкая, так что похуй, вполне комфортно будет и в совмещенном.
>>72879-кун
Аноним 16/03/16 Срд 16:47:00  76651
>>75932
очеивидный planner5d очевиден.

Also, оригинальный ОП в треде. Давно не заходил, но работа идёт. Посредством нанятого строителя к настоящему моменту выровнены почти все стены, в тч в санузле. Стояки заменены и передвинуты к стене. Готовлюсь шкрябать потолки, дальше звукоизолировать их и стены по периметру.

Позже может фото закину.
Аноним 21/03/16 Пнд 07:33:40  77109
>>69181
Радиаторы пискоструятся и красятся специальной краской
Аноним 22/03/16 Втр 21:49:31  77326
(811Кб, 1133x772)
>>68757 (OP)
Аноним 21/04/16 Чтв 05:22:36  80122
Оп, ты жив?
Аноним 21/04/16 Чтв 10:18:06  80139
>>69147 да есть такие модель МС-140
Аноним 21/04/16 Чтв 10:52:24  80145
>>71878
а куда кухня пропала?
Аноним 24/05/16 Втр 02:17:52  84041
OP?
Аноним 24/05/16 Втр 11:39:20  84058
>>84041
Он исчез. Стеной придавило пока сносил.
Аноним 24/05/16 Втр 12:37:30  84060
>>69146
Чем шлифовать батареи? И какой краской лучше красить?
мимокрок, хочу сделать так
Аноним 24/05/16 Втр 18:01:50  84076
>>68757 (OP)
ОП, а нахуя тебе столько шкафов? У меня с женой всё прекрасно помещается в один шкаф из Икеи и один комод. А ты вообще вроде один жить собрался.
Аноним 24/05/16 Втр 19:25:32  84079
>>84076
У меня с женой огромный встроенный шкаф в прихожей, большой шкаф, две тумбы, два комода, шкаф на лоджии и еще две скрытые полки для хлама. Одна зимняя одежда занимает много места, а для женской обуви нужен отдельный шкаф.
Аноним 24/05/16 Втр 20:02:53  84085
>>84060
Если у тебя за декоративным экраном они, то никакой. Никто и никогда не увидит твоих потуг. Если без экрана, то обдираешь краску металлической щеткой-насадкой на дрель (крацовкой) и красишь краской для радиаторов.
Аноним 24/05/16 Втр 20:06:46  84086
>>84085
Экран не подойдет, там всего 3 секции.
Аноним 25/05/16 Срд 07:24:54  84126
https://www.youtube.com/watch?v=lbqG2cOS9xg
Аноним 25/05/16 Срд 11:11:16  84141
>>84076
Классная жена.:(
Аноним 26/05/16 Чтв 15:03:34  84317
>>84141
Так он на мужике женат.
Аноним 04/06/16 Суб 18:08:57  85301
>>84317
лол
Аноним 11/06/16 Суб 23:18:25  86098
>>68867
>Летом мотокросю, зимой ньюскулю, круглый год акробатика и растяжка.
>... днем беру на ротан, вечером порюсь в пукан
Аноним 11/06/16 Суб 23:48:53  86105
>>68804
В какой программе делал?
Аноним 20/06/16 Пнд 05:56:31  87041
Выходи на связь
Аноним 24/06/16 Птн 22:23:50  87394
Анон, ты где?
Аноним 28/06/16 Втр 09:55:24  87607
>>87394
Он умер от рака
Аноним 30/06/16 Чтв 21:17:43  87849
https://www.youtube.com/watch?v=o6oZpqxowis
Аноним 01/07/16 Птн 16:53:39  87890
>>87849
> колонки в комнате без звукоизоляции
пидораха/10
Аноним 03/07/16 Вск 21:20:09  88011
>>87890
Колонки можно покупать только при условии звукоизоляции комнаты?
Аноним 03/07/16 Вск 22:21:57  88012
>>88011
да, иначе ты дикая, некультурная пидораха
Аноним 04/07/16 Пнд 00:01:00  88019
>>88012
Мне похуй. Ной дальше, вызывай ментов, когда я въебу любимое музло ночью под водочку, можешь гневный пост высрать, что тебе ещё остается.
Аноним 04/07/16 Пнд 07:52:43  88025
(1863Кб, 2592x1944)
>>87890
Сасай.
Аноним 04/07/16 Пнд 11:36:50  88031
>>88019
>>88025
пидорахи, в печь прыг
Аноним 04/07/16 Пнд 12:39:45  88033
>>88025
мм, мсье знает толк в акустике
Аноним 04/07/16 Пнд 19:22:28  88064
>>88019
>Мне похуй. Ной дальше, вызывай ментов, когда я въебу любимое музло ночью под водочку, можешь гневный пост высрать, что тебе ещё остается.

Я просто вырублю тебе электричество. И что ты сделаешь?
Аноним 04/07/16 Пнд 20:12:28  88066
>>88064
У такого скама обычно площадка перекрыта. Мы звонили соседям и вырубали щиток. Помогало, но не надолго. Я в особенно охуенную оргию в 3 часа ночи взял палку и разъебал им оконное стекло. соседи снизу. Как ни странно помогло.
Аноним 07/07/16 Чтв 22:23:59  88176
>>88012
А если я не слушаю громко музыку и не мешаю соседям?
Аноним 08/07/16 Птн 06:40:46  88192
>>88176
Мне похуй, я в этом треде жду ОП'а.
Аноним 25/07/16 Пнд 17:39:50  89340
О, тред еще жив. Я не оп, я >>74207 - кун. Тоже еще жив. И хрущ жив, но все еще недостроен.
Аноним 26/07/16 Втр 09:14:01  89384
>>89340
А оп где? Пили свои отчеты.
Аноним 26/07/16 Втр 16:58:20  89433
>>89384
Отчеты (>>74207) такие:
1. Стены готовы
2. Электрика сделана (таджиками, чет не очень)
3. Окна поставлены, стояк с водой новый, батареи старые выкинул

Теперь жду, когда освободится штукатурщик, и в прежнем недоумении размышляю над устройством пола. Хз какой делать.
Аноним 04/08/16 Чтв 01:36:04  90337
(285Кб, 2782x600)
(315Кб, 2560x600)
Оп в треде. Делаю, но медленно блджад. Стены давно выровнены в тч в санузле, в нём также пол залит. Провода проложены, звукоизоляция по всем стенам с соседями + на потолке. Потолок в спальне замазал штукатуркой, до конца недели планирую в большой комнате замазать потолок.
Аноним 04/08/16 Чтв 01:51:02  90338
>>90337
выкинул ванну и батареи, с батарейных стояков отодрал старую краску, стояки в санузле поменял на новые.
Аноним 04/08/16 Чтв 09:42:48  90350
>>90337
Пол паркет? Выглядит неплохо. Что по деньгам?
Аноним 04/08/16 Чтв 12:39:43  90357
>>90350
По паркет, старый-родной. Вцелом живой, местами вспучился. Но не скрипит. Перестилать не буду, положу новый пол сверху.

Денег не считал. По примерным прикидкам сотни две с половиной уже. А толком нихуя не сделано, лол. С другой стороны, осталось тоже немного, во всяком случае пытаюсь заставить себя в этом поверить, лол.
Аноним 15/08/16 Пнд 12:34:38  91206
>>90357
А что у тебя за звукоизоляция такая по стенам и потолку? Минвата?
Аноним 18/08/16 Чтв 20:07:02  91550
>>91206
isoplaat
Аноним 07/03/17 Втр 12:55:20  102217
Оп, ну чо, как твой хрущелофт поживает?
Аноним 17/03/17 Птн 12:53:29  102621
ОП просыпайся - уже весна! Так и растянулось на 2 года? )
Аноним 20/03/17 Пнд 11:18:18  102741
Оп не молчи
Аноним 21/03/17 Втр 03:25:02  102870
>>102741
Он в бегах,как сможет отпишется.

[Назад][Обновить тред][Вверх][Каталог] [Реквест разбана] [Подписаться на тред] [ ] 193 | 32 | 94
Назад Вверх Каталог Обновить

Топ тредов
Избранное